Bildgalleri
(1/11)
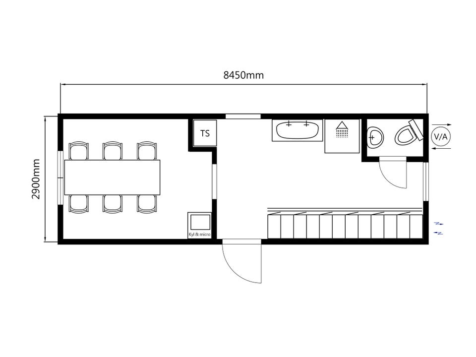
12728 6-mans Personalbod med WC och Dusch/Manskapsbod/Arbetsbod/Bod
Säljes55 000 kr
Beskrivning
Angivet pris är ett frånpris. Vi har fler liknande objekt i varierande storlekar, utföranden och skick, vilket gör att priset kan variera beroende på val av objekt och eventuella anpassningar. Kontakta oss för aktuell prisinformation och offert utifrån ert behov.
Begagnad personalbod för upp till 6 personer.
Tillverkningssår: 2021
Här får du en komplett etableringslösning med omklädning, hygienutrymmen och fullvärdigt fikarum – redo att tas i bruk direkt.
Utrustad med:
- Dubbla låsbara omklädningsskåp för 6 personer
- WC
- Dusch
- Tvättställ
- Varmvattenberedare
- Torkskåp
- Fullutrustat fikarum med bord, stolar, kylskåp och dubbla mikrovågsugnar
- Fönstergaller
- Låsbom
Boden är fullt isolerad och levereras komplett med elinstallationer, radiatorer samt takmonterad belysning.
En välutrustad personalbod som passar perfekt för byggarbetsplatser, industri eller tillfälliga etableringar där funktion och komfort är viktigt.
Vi har totalt 5 bodar i motsvarande skick tillgängliga som kan kombineras till en komplett uppställning. Kontakta oss så berättar vi mer.
-------------------------------------------------------------------------------------------------------------------------------------------------------
Som kund hos Bodbörsen får du en komplett helhetslösning – från fabriksrenovering och anpassning till transport, bygglov, montage, finansiering och återköp.
Välj era tillbehör som möblering, värme, ventilation och trappor för att få en komplett lösning vid leverans.
Vi erbjuder finansieringslösningar för både privatpersoner och företag.
För företag finns flera flexibla alternativ:
– Leasing på 60 eller 36 månader
– Hyra minst 12 månader
När ni väljer återbrukat minskar vi tillsammans klimatavtrycket med över 70% jämfört med att bygga nytt – ett smart val för både miljön och plånboken.
📞 Kontakta oss idag för offert eller mer information!
Obs: Knappen för att visa hela beskrivningen har bara en visuell effekt.
Plats
| Annons-ID | 22625608 |
|---|---|
| Senast ändrad | 24.4.2026 kl. 16:05 |