Bildgalleri
(1/9)
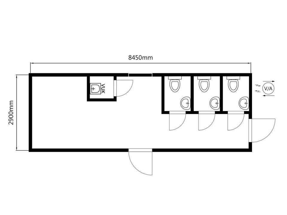
12295 Toalettbod /Entrébod / Bod med 3 st WC
Säljes
Beskrivning
Toalettbod/entrébod för temporära eller permanenta behov av sanitetsutrymmen. Idealisk för byggarbetsplatser, evenemang eller andra sammanhang där extra sanitetsfaciliteter behövs.
Boden är utrustad med:
- 3 st WC
- städförråd med varmvattenberedare och utslagsback
- rymligt entréutrymme
Boden är isolerad och komplett med elinstallationer och armaturer i tak. Byggd på stålram med lyftöglor och gaffelfickor.
Produktdata
Dimensioner: 8450 × 2900 mm
Invändig takhöjd: 2400 mm
Total yta: 24 m²
Referensbild utvändigt. Viss avvikelse kan förekomma.
Kan målas i önskad kulör innan leverans.
-------------------------------------------------------------------------
Som kund hos Bodbörsen får du en helhetslösning med fabriksrenovering, transport, bygglov, montage, finansiering och återköp – allt på ett ställe.
Välj era tillbehör som möblering, värme, ventilation och trappor för att få en komplett lösning vid leverans.
Vi erbjuder flera olika finansieringslösningar för företag:
– Betalning innan leverans
– Leasing på 60 eller 36 månader
– Hyra minst 12 månader
När ni väljer återbrukat minskar vi tillsammans klimatavtrycket med över 70 % jämfört med att bygga en ny bod. Smart val som är bra för både planet och plånbok.
📞 Kontakta oss idag för offert eller mer information!
Obs: Knappen för att visa hela beskrivningen har bara en visuell effekt.
Plats
| Annons-ID | 20956188 |
|---|---|
| Senast ändrad | 2026-04-14 kl. 11:58 |