Bildgalleri
(1/11)
88097 Fabriksrenoverade bodar med skjutbart fönsterparti
Säljes
Beskrivning
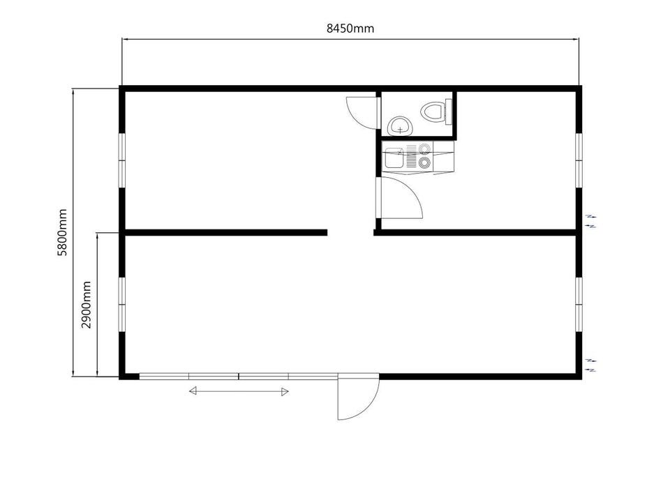
Fabriksrenoverad uppställning av två bodar (totalt 48 kvm) med gott om ljusinsläpp tack vare ett nytt vinterisolerat skjutglasparti.
Planlösningen består av en större öppen kontorsyta samt en separat del med pentry och toalett. Den öppna ytan ger goda möjligheter att möblera med flera arbetsplatser, mötesbord eller loungeyta beroende på verksamhetens behov.
Boden lämpar sig väl för många olika användningsområden, exempelvis:
– Projektkontor på byggarbetsplatser
– Tillfälligt kontor vid expansion eller ombyggnation
– Personalutrymme eller pausrum
– Showroom eller kundmottagning
– Pop-up butik eller försäljningskontor
Boden är isolerad och levereras komplett med elinstallationer och takarmaturer. Konstruktionen är byggd på en stabil stålram med lyftöglor för enkel hantering och transport.
Det finns även möjlighet att anpassa bodarna/bygga på för fler kontor, toaletter eller omklädningsrum efter behov. Tveka inte att kontakta oss så hjälper vi er att hitta en lösning för just ert behov!
-------------------------------------------------------------------------
Som kund hos Bodbörsen får du en helhetslösning med fabriksrenovering, transport, bygglov, montage, finansiering och återköp – allt på ett ställe.
Välj era tillbehör som möblering, värme, ventilation och trappor för att få en komplett lösning vid leverans.
Vi erbjuder flera olika finansieringslösningar för företag:
– Betalning innan leverans
– Leasing på 60 eller 36 månader
– Hyra minst 12 månader
När ni väljer återbrukat minskar vi tillsammans klimatavtrycket med över 70 % jämfört med att bygga en ny bod. Smart val som är bra för både planet och plånbok.
📞 Kontakta oss idag för offert eller mer information!
Obs: Knappen för att visa hela beskrivningen har bara en visuell effekt.
Plats
| Annons-ID | 21294993 |
|---|---|
| Senast ändrad | 14.4.2026 kl. 11:58 |