Bildgalleri
(1/7)
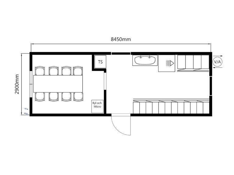
10889 Beg. 8-mans personalbod / arbetsbod / bod
Säljes
Beskrivning
Begagnad 8-mans personalbod utrustad med:
- Omklädningsskåp för 8 personer
- Vask
- Varmvattenberedare
- Dusch
- Torkskåp
- Fikarum med bord, stolar, kyl och mikro
Dimensioner (mm): 8450 × 2900
Invändig takhöjd (mm): 2400
Total yta (m²): 24
Boden har fönstergaller och är komplett med elinstallationer, radiatorer samt armaturer i tak.
Isolerad och byggd på stålram med lyftöglor.
Möjlighet för dörr på kortsidan.
Referensbilder utvändigt!
Fabriksrenoveras och målas utvändigt i önskad kulör innan leverans.
✔ Levereras funktionskontrollerad!
Vi erbjuder hjälp med finansiering, transport och montering.
Kontakta oss för mer information!
Besök gärna vår hemsida eller vår depå i Landskrona för att se våra andra objekt. Vi har bodar i olika storlekar, modeller och utföranden.
Arbetsbod Kontorsbod Byggbod Begagnad bod Renoverad bod Manskapsbod Personalbod Modulbod Förrådscontainer Byggcontainer Mobila kontor Prefabricerade bodar Tillfälliga arbetsplatser Flyttbara bodar Fritidsbod Attefallshus Rastbod Tillfälliga kontor, Byggarbetsplats Byggprojekt Tillfälliga lokaler Entreprenadlösningar Industribodar Uthyrning av bodar Kontorslösningar för företag Bygg- och kontorsmoduler Tillfälliga bostäder Entreprenadmoduler, Rastbod, stålmoduler, Byssja, Rastvagn, sovvagn, stuga, bostadsbod, bostadsmodul, hjulvagn, Hjulbod, Skogskoja, Huggarkoja, Scanvogn
Obs: Knappen för att visa hela beskrivningen har bara en visuell effekt.
Plats
| Annons-ID | 19408136 |
|---|---|
| Senast ändrad | 10.12.2025 kl. 14:40 |