Bildgalleri
(1/7)
Garage 45 m2
Säljes
Beskrivning
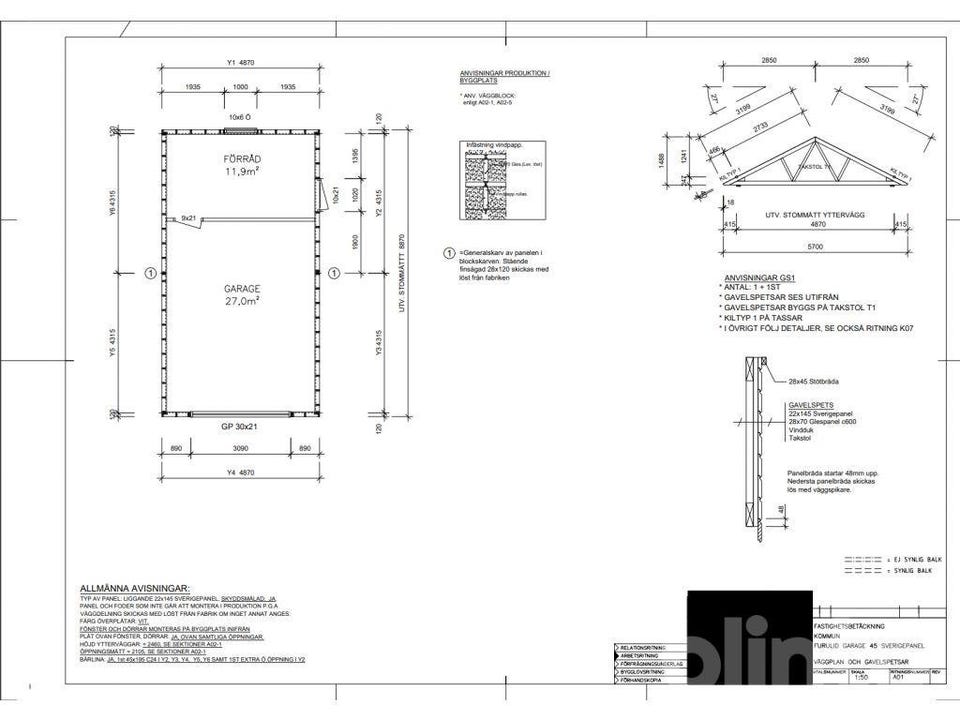
Garage 43m2 lågenergistomme
Förråd
Husstomme
Moduler
Byggd av proffesionellt byggföretag/husfabrik.
Nyproducerat.
Tillverkad: 2025
Areauppgifter:
Yta:43,19m2
Yta invändigt planerat för förråd 11.9m2 samt garage 27m2=38.9m2
Total nyggnadsarea 8,87X4,87=43,19m2
Garage för betongplatta.
Avdelande innervägg är inte bärande och ingår ej.
Stommens uppbyggnad
Liggande 22x145 Sverigepanel grundmålad.
Öppningsmått garageport 2105 mm 30x21
Höjd ytterväggar 2460 mmBärlina Ja 1 st 45x195 mm
28/70 Glespanel
5Vindduk
645/120 regel
7120 minerallull ingår ej isolering
8Åldersbeständig plastfolie ingår ej
9Gips ingår ej
Ytterväggar utan fönster och dörrar.
Takstolar med inklädd takfot ingår.
Råspontstak 17mm och takpapp ingår.
Vindskivor och knutar ingår.
Grundmålat vit.
Syll och sylltätning ingår
Ritningar till stomme ingår.
Förslag på planlösning bland bilder.
Övriga upplysningar
Takstolar är beräknade efter max snözon 2,5 referens vindhastighet 22m/s
Takläckt och pannor ingår ej.
Inneväggar ingår ej.
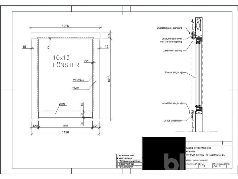
Fönster ingår ej.
Dörrar ingår ej.
El ingår ej.
VVS ingår ej.
Ytterväggar kommer i 6 st sektioner.
Övrigt
Lasthjälp med kranbil.
Förslag på planlösning finns bland bilder.
Monteringsanvisningar.
Transport och kranmontering kan erbjudas mot offert.
Vid frågor om detta objekt kontakt christian.fellinger_blinto.se
Obs: Knappen för att visa hela beskrivningen har bara en visuell effekt.
Plats
| Annons-ID | 20975005 |
|---|---|
| Senast ändrad | 20.2.2026 kl. 08:34 |