Bildgalleri
(1/6)
Lågenergihus Hus 178m2
Säljes
Beskrivning
Säljs på auktion hos Blinto. För aktuellt högsta bud och mer information besök blinto.se eller klicka på hänvisad länk i annonsen.
Hus stomme 178m2
Husstomme / Lågenergi stomme 178.4 m2
Byggd av proffesionellt byggföretag/husfabrik.
Byggsats
Lågenergihus
Tillverkad: 2026
Lågenergistomme.
Hus 178m2.
Byggnadsarea 178,4m2.
Boarea 160,9m2.
Hus för betongplatta.
Stommens uppbyggnad
22x145 Sverige panel.
28/70 spikläkt
Vindskyddsfolie
30mm fasadskiva
45/170 regel
170 isolering
020 plast
45/45 installationsskikt
Ytterväggar utan fönster och dörrar.
Halvmåne fönster gavlar ingår.
Takstolar med inklädd takfot ingår.
Gavelspetsar ingår.
Råspontstak 17mm och takpapp ingår.
Vindskivor och knutar ingår.
Grundmålat vit.
Liggande panel.
Syll och sylltätning ingår
Ritningar till stomme ingår.
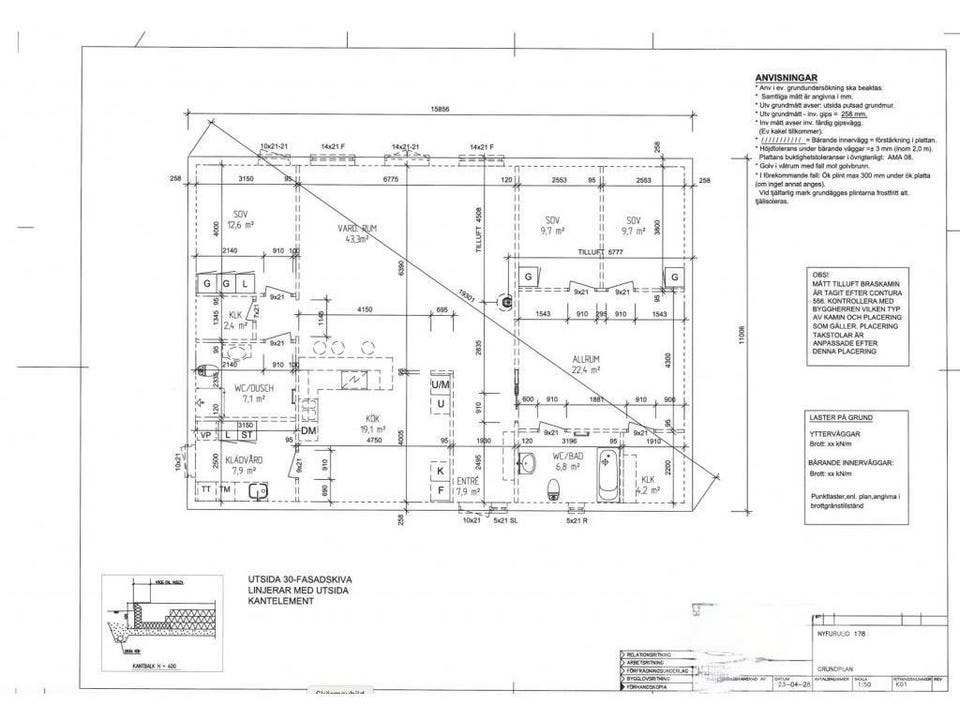
Förslag på planlösning bland bilder.
Övriga upplysningar
Takläckt och pannor ingår ej.
Inneväggar ingår ej.
Fönster ingår ej.
Dörrar ingår ej.
El ingår ej.
VVS ingår ej.
Nytillverkade stommar.
Vissa bilder är kundbilder på monterade stommar.
Övrigt
Förslag på planlösning finns bland bilder.
Montering av hus och takstolar samt transport och kranmontering kan erbjudas mot offert.
Vid frågor om detta objekt kontakt christian.fellinger_blinto.se
Lasthjälp med lyft finns.
Obs: Knappen för att visa hela beskrivningen har bara en visuell effekt.
Plats
| Annons-ID | 22449730 |
|---|---|
| Senast ändrad | 17.4.2026 kl. 14:28 |