Bildgalleri
(1/6)
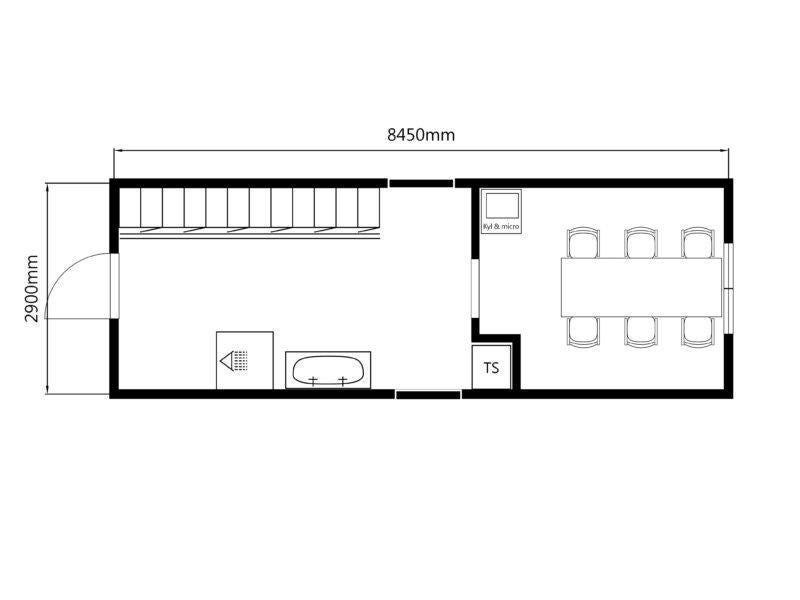
10959 Beg. 6-mans Personalbod / Manskapsbod / Bod
Säljes
Beskrivning
Begagnad personalbod med dusch.
Boden är utrustad med:
- omklädningsskåp för 6 personer
- vask, varmvattenberedare, dusch, torkskåp
- fikarum med bord, stolar och kylskåp
- fönstergaller
Med möjlighet för dörr på kortsidan.
Referensbild utvändigt, kan målas utvändigt i önskad kulör.
Dimensioner (mm): 8450 × 2900
Takhöjd (mm): 2400
Total yta (m²): 24
Boden är komplett med elinstallationer, radiatorer under fönster samt armaturer i tak, isolerad, byggd på stålram med lyftöglor.
Välkommen att besöka vår visningsanläggning i Landskrona där vi har ett 500-tal olika objekt. Allt ifrån personalbodar och arbetsbodar, till stålmoduler, container, sanitetsbodar och stora modulbyggnader.
Kontakta oss för mer information!
Arbetsbod Kontorsbod Byggbod Begagnad bod Renoverad bod Manskapsbod Personalbod Modulbod Förrådscontainer Byggcontainer Mobila kontor Prefabricerade bodar Tillfälliga arbetsplatser Flyttbara bodar Fritidsbod Attefallshus Rastbod Tillfälliga kontor, Byggarbetsplats Byggprojekt Tillfälliga lokaler Entreprenadlösningar Industribodar Uthyrning av bodar Kontorslösningar för företag Bygg- och kontorsmoduler Tillfälliga bostäder Entreprenadmoduler, Rastbod, stålmoduler, Byssja, Rastvagn, sovvagn, stuga, bostadsbod, bostadsmodul,
Obs: Knappen för att visa hela beskrivningen har bara en visuell effekt.
Plats
| Annons-ID | 19408180 |
|---|---|
| Senast ändrad | 10.12.2025 kl. 14:42 |