Bildgalleri
(1/9)
Inaktiv
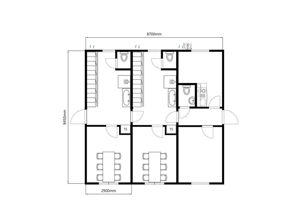
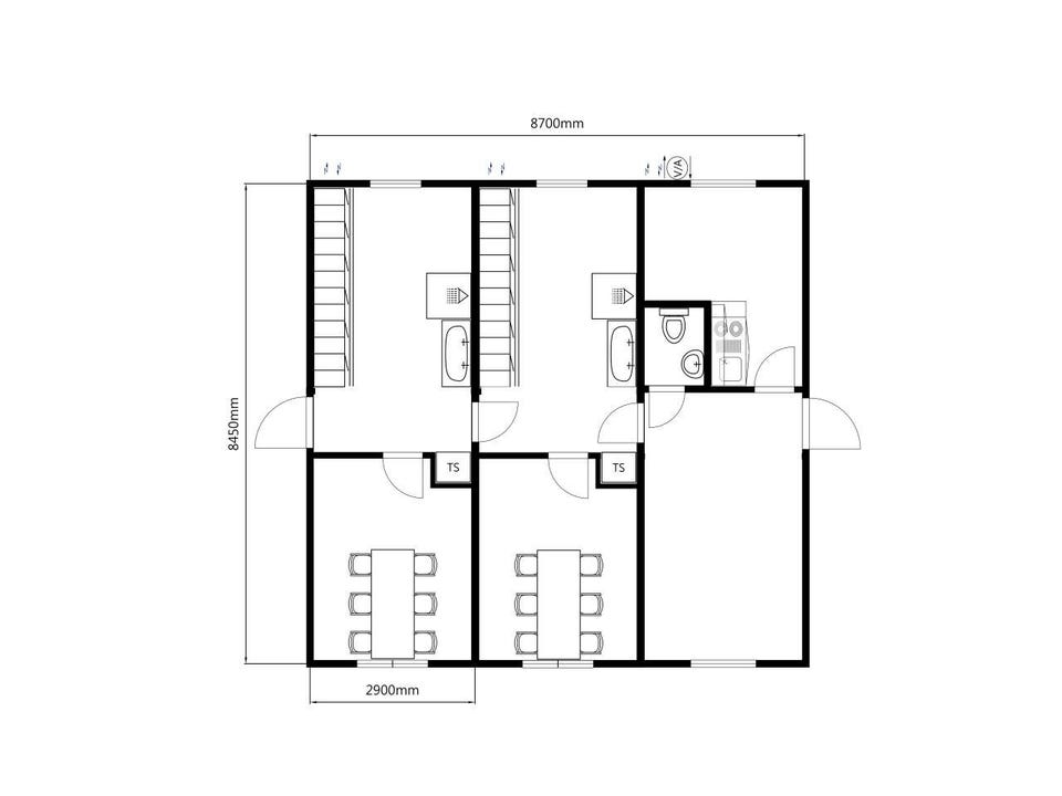
88145 3 fabriksrenoverad arbetsbodar (72 kvm)
Bortskänkes
Beskrivning
3 fabriksrenoverad arbetsbodar på 72 kvm
Fabriksrenoverad arbetsbodar med en yta på 24 kvm var, designad för att rymma upp till 12 personer vardera. Utrustad med WC, dusch, omklädningsutrymme samt ett kontorsutrymme. Bodarna är anpassade för att skapa en bekväm och funktionell arbetsmiljö på arbetsplatsen.
– WC och dusch
– Omklädningsutrymme med förvaringsskåp
– Kontorsutrymme
– Isolerad för användning året runt
Varför investera i nytt när du kan välja begagnat? Med våra renoverade bodar sparar du både pengar och bidrar till en mer hållbar framtid.
Varje bod har genomgått en noggrann renovering för att säkerställa högsta kvalitet och funktionalitet.
Kontakta oss för mer information eller besök oss på vår depå i Landskrona!
Obs: Knappen för att visa hela beskrivningen har bara en visuell effekt.
Plats
| Annons-ID | 538131 |
|---|---|
| Senast ändrad | 25.8.2025 kl. 20:43 |