Bildgalleri
(1/6)
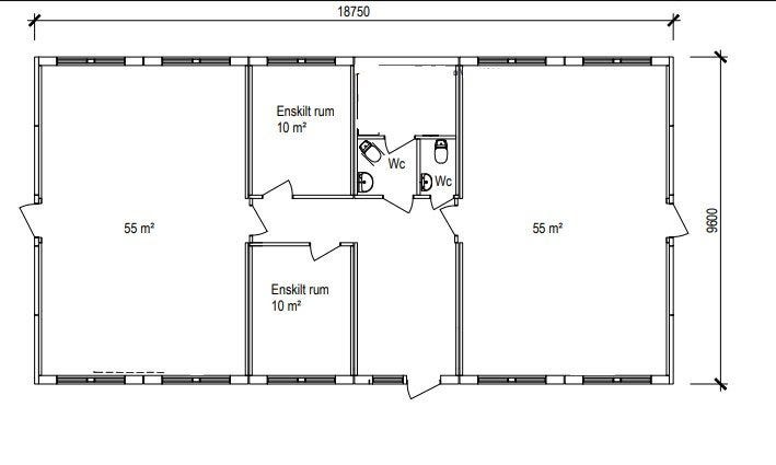
Beg Modulbyggnad med stora salar ca 175kvm
Säljes
Beskrivning
Begagnad modulbyggand i gott skick, perfekt som kontor eller annan typ av verksamhet.
Byggnaden består av 6 stycken moduler där varje modul är på 29kvm, två stora salar på 55kvm vardera samt 2 stycken kontor och en entré modul.
Objektet går att anpassa efter önskad kvadrat.
Kontakta oss idag för att ta reda på hur en begagnad modulbyggnad kan anpassas efter just era önskemål.
Referens bild utvändigt målas om i valfri kulör innan leverans.
Mått: Utv: 9600 mm
Utv. bredd: 3060 mm.
Utv. totalhöjd: 3350mm Inv. takhöjd: 2700mm.
Vi hjälper gärna till med montage och transport i hela Sverige och Norden, Kontakta oss för mer information!
Vi kan hjälpa till med följande.
– Finansieringslösningar/leasing på alla våra objekt.
-Transport till hela Norden
-Ta fram er egna desing och lösning.
Kontorsbodar Kontorsmodul, Arbetsbod,Arbetsbodar,
Stålmodul,Manskapsbod,
Manskapsbodar. Byggbarack Bobarack Bodar Sovbodar Byggbodar Kontorsbodar
Obs: Knappen för att visa hela beskrivningen har bara en visuell effekt.
Plats
| Annons-ID | 495409 |
|---|---|
| Senast ändrad | 18.1.2026 kl. 11:37 |