Bildgalleri
(1/4)
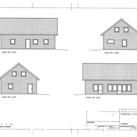
Hus stomme enplans lågenergihus 150 m2 helt nytt , omonterat
Säljes
Beskrivning
Detta objekt säljs på nätauktionen Retrade. Du hittar all information du behöver, och det högsta budet, genom att klicka på länken i denna annons.
Gå till auktionen här:
https://retrade.eu/sv/auction/139958
Lågenergihus / Stomme enplansvilla 150 m2
Bilder avser färdigt hus ( obs allt ingår ej som är med på bilder , se spec nedan vad som ingår)
Byggd av proffesionellt byggföretag/husfabrik.
Nyproducerat. Produktionstid ca 6 veckor efter köp genomförts.
Lågenergistomme.
Hus 150m2
Byggnadsarea 150.1m2
Boarea 134,4m2
Hus för betongplatta.
Höjd ytterväggar 2560mm
Stommens uppbyggnad:
1 28x195mm Englands panel
2 28/70 spikläkt
3 Vindskyddsfolie
4 30mm fasadskiva
5 45/170 regel
6 170 isolering
7 020 plast
8 45/45 installationsskikt
Ytterväggar utan fönster och dörrar.
Takstolar med inklädd takfot ingår.
Gavelspetsar ingår.
Råspontstak 17mm och takpapp ingår.
Vindskivor och knutar ingår.
Grundmålat vit.
Liggande panel.
Syll och sylltätning ingår
Ritningar till stomme ingår.
Förslag på planlösning bland ritningar
OBS!!
Takläckt och pannor ingår ej.
Inneväggar ingår ej.
Fönster ingår ej.
Dörrar ingår ej.
El ingår ej.
VVS ingår ej.
Grund ingår ej , endast hus-stomme enligt spec
Montering av hus och takstolar samt transport och kran montering kan erbjudas mot offert.
Även dörrar, fönster med mera kan offerteras.
Huset tar ca en lastbil med släp (24 m ekeipage). Går även att lasta på två Europatrailers
Lastning av materialet ingår
Obs: Knappen för att visa hela beskrivningen har bara en visuell effekt.
Plats
| Annons-ID | 22816499 |
|---|---|
| Senast ändrad | 30.4.2026 kl. 10:46 |