Bildgalleri
Marbodal kök från 2010 – mycket gott skick, demonterat, originalritningar finns
Säljes
39 000 kr
Varubeskrivning
Skick: Bra skick - varsamt använd
Vi säljer ett Marbodal‑kök från 2010 som nyligen har demonterats.
Köket har suttit i vårt sommarhus, vilket innebär ett avsevärt bättre skick än vad årtalet normalt antyder.
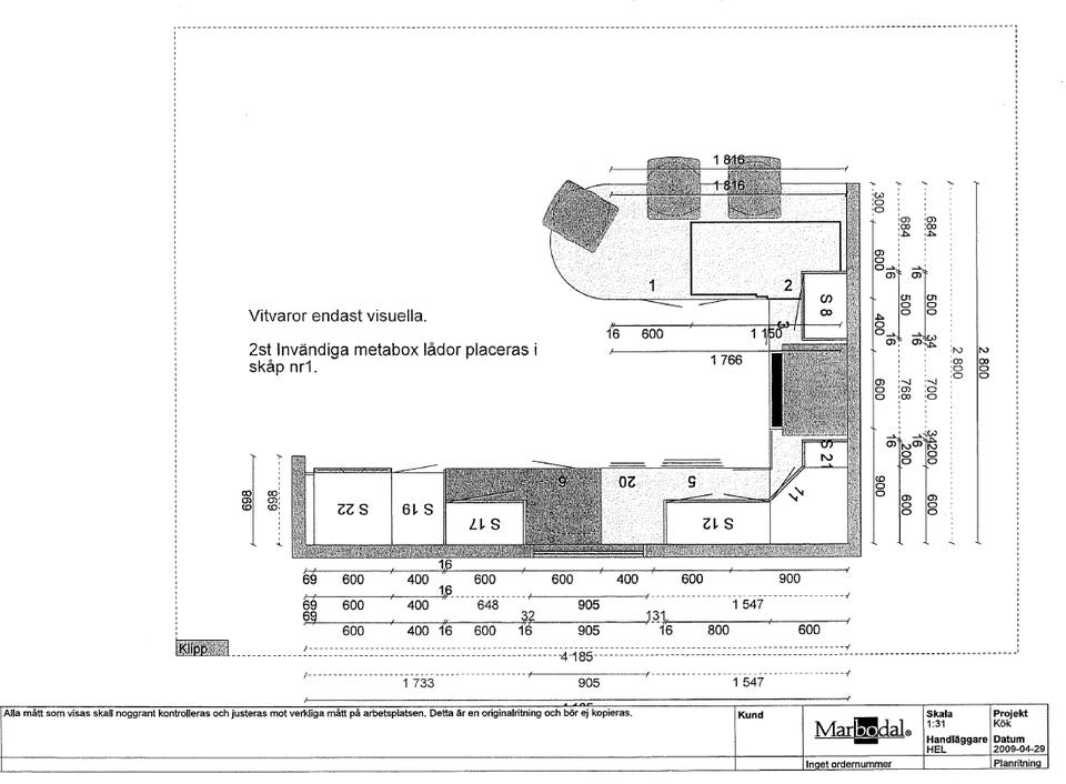
Köket består av samtliga stommar och skåpsluckor, är komplett enligt ritningarna förutom ett överskåp för mikrovågsugn (S8) som tyvärr saknas – detta är tydligt markerat i planritningen och har tagits hänsyn till i priset.
✅ Fakta & omfattning:
Märke: Marbodal
År: 2010
Skick: Mycket gott
Alla stommar, luckor, gångjärn och lådor ingår
Originalritningar och mått finns (se bilder)
Köket är demonterat och klart för transport/återmontage
Bänkskiva ingår ej
Vi har begränsat med bilder från när köket var monterat, då vi initialt planerade att återanvända köket i ett attefallshus. Ritningar och mått finns dock i original och ger full överblick.
🔧 Vitvaror (valfritt):
Köksfläkt från ca 2010
Diskmaskin från 2024, knappt använd
Vitvarorna kan köpas separat eller som tillägg vid smidig affär.
Köket passar utmärkt till sommarhus, attefallshus, lägenhet eller renoveringsprojekt där man vill ha ett kvalitetskök till en bråkdel av nypriset.
📍 Finns för avhämtning på Flatön/Ellös/Orust
💰 Pris: 39 000 kr
(Rimlig prutmån finns vid snabb och smidig affär)
Hör av dig vid frågor eller om du vill ta del av mer information.
Användarprofil
Du måste vara inloggad för att se användarprofiler och skicka meddelanden.
Logga inAnnonsens metadata
Senast ändrad: 20.4.2026 kl. 10:35 ・ Annons-ID: 22536745