Bildgalleri
Före demontering
(1/6)
6 st bodar 35 kvm slumpas för omgående hämtning
Säljes
12 000 kr
Be säljaren att skicka med Frakt med köpskydd! Det är säkert, snabbt och du får varan hem till dig. Läs mer
Varubeskrivning
Skick: Okej skick - synligt använd
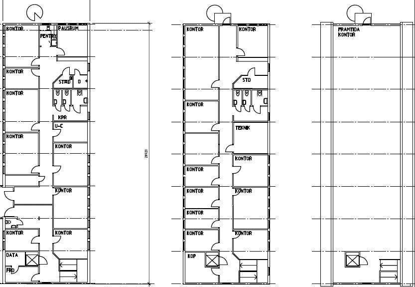
6 st moduler säljes för omgående avhämtning, från 12000/st beroende på innehåll
Mått ca 3,6x9,6m, med papptak och regnavvattning
Ny el dragen mm
Div inredning som toaletter, fläktanläggning, kök, hiss mm
Se bild, takväningen är inte kvar, endast moduler
Transport kan ordnas till självkostnadspris
Skriv för mer information!
Obs: Knappen för att visa hela beskrivningen har bara en visuell effekt.
Användarprofil
Du måste vara inloggad för att se användarprofiler och skicka meddelanden.
Logga inAnnonsens metadata
Senast ändrad: 11.4.2026 kl. 14:54 ・ Annons-ID: 22280248