Bildgalleri
(1/9)
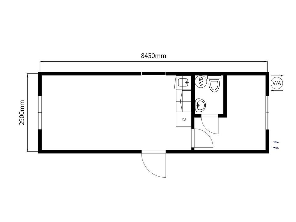
12704 Personalbod med pentry, WC och kontor/Bod/Kontorsbod
Säljes
Beskrivning
Begagnad personalbod som passar perfekt som personalutrymme eller kontorslösning.
Utrustad med:
- Stort rum med pentry
- Toalett med WC, vask och varmvattenberedare
- Mindre rum (kontor eller förråd)
Referensbild utvändigt, viss avvikelse kan förekomma.
-------------------------------------------------------------------------
Som kund hos Bodbörsen får du en komplett helhetslösning – från fabriksrenovering och anpassning till transport, bygglov, montage, finansiering och återköp.
Välj era tillbehör som möblering, värme, ventilation och trappor för att få en komplett lösning vid leverans.
Vi erbjuder finansieringslösningar för både privatpersoner och företag.
För företag finns flera flexibla alternativ:
– Leasing på 60 eller 36 månader
– Hyra minst 12 månader
När ni väljer återbrukat minskar vi tillsammans klimatavtrycket med över 70% jämfört med att bygga nytt – ett smart val för både miljön och plånboken.
📞 Kontakta oss idag för offert eller mer information!
Obs: Knappen för att visa hela beskrivningen har bara en visuell effekt.
Plats
| Annons-ID | 22024576 |
|---|---|
| Senast ändrad | 2026-04-14 kl. 11:57 |