Bildgalleri
Handtimrad timmerstomme – “Gråhogna” – massiv i furu (150 mm)
Säljes
509 000 kr
Varubeskrivning
Skick: Nytt skick - helt ny
Nu finns möjlighet att förvärva en unik handtimrad timmerstomme – "Gråhogna".
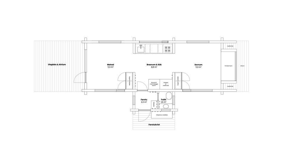
Gråhogna har tydliga rötter i nordiskt byggande, där traditionell form möter en genomtänkt och yteffektiv planlösning. Den långsmala volymen skapar ett naturligt flöde genom byggnaden, där varje funktion får sin plats utan att helheten känns uppdelad.
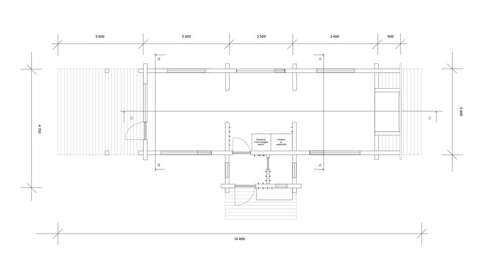
Stommen är uppförd i massiv furu med 150 mm blockat timmer. Varje del är bearbetad och passad för hand, vilket ger en konstruktion med både tyngd och precision.
I husets mitt ligger kök och brasrum, en varm och social kärna som binder samman byggnaden. Härifrån nås både matsal och sovrum – två tydliga delar med olika karaktär men med samma omsorg i proportioner, ljus och material. Eldstaden fungerar som en naturlig samlingspunkt och förstärker känslan av kontinuitet i huset.
Entrén är placerad i en praktisk farstu med möjlighet att inreda tvättrum, vilket gör huset funktionellt året om. Planlösningen är kompakt men rik på innehåll, med flera distinkta platser för både vardag och vila.
Mot utsidan öppnar sig byggnaden med uteplats och nischer som förlänger rummet och skapar en mjuk övergång mellan inne och ute.
Gråhogna passar perfekt som jaktstuga, gästhus eller fritidshus – ett hus där klassiskt timmerhantverk möter ett mer modernt sätt att leva.
Användarprofil
Du måste vara inloggad för att se användarprofiler och skicka meddelanden.
Logga inAnnonsens metadata
Senast ändrad: 22.3.2026 kl. 20:40 ・ Annons-ID: 21751590