Bildgalleri
(1/8)
Beg Modulbyggnad/ Kontor / Bod / Personalbod 200kvm
Säljes
Beskrivning
Begagnad modulbyggand i mycket gott skick, perfekt som kontor eller annan typ av verksamhet.
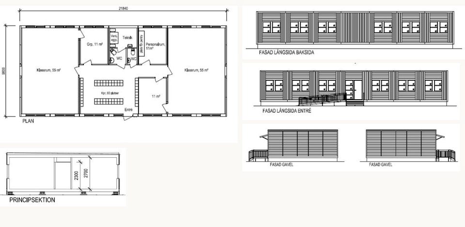
Byggnaden består av 7 stycken moduler där varje modul är på ca 29kvm.
Uppställningen är i dagsläget i drift och kommer vara tillgänglig slutet av juni 2026, byggnaden står i dagsläget i Stockholmsområdet.
Uppställningen innehåller följande:
-2 stycken öppna salar på 55kvm vardera.
-Entré med skåp.
-2 toaletter.
-Teknikum med ventilation.
-Vilorum/personalrum.
Kontakta oss idag för att ta reda på hur en begagnad modul kan anpassas efter dina önskemål.
Kan anpassas efter just era önskemål.
Mått: Utv: 9600 mm
Utv. bredd: 3060 mm.
Utv. totalhöjd: 3350mm Inv. takhöjd: 2700mm.
Vi hjälper gärna till med montage och transport inom hela Sverige och Norden.
– Leasing företag på 72, 60 eller 36 månader.
– Hyra minst 12 månader
-Delbetalning Privat upp till 180 månader.
När du väljer återbruk ifrån Allabodar.se minskar du inte bara klimat avtrycket med över 70% utan även besparing i plånboken jämfört om man bygger helt nytt.
Kontakta oss redan idag för att veta mer!
Kontorsbodar Kontorsmodul, Arbetsbod,Arbetsbodar,
Stålmodul,Manskapsbod, attefalshus
Manskapsbodar. Byggbarack Bobarack Bodar Sovbodar Byggbodar Kontorsbodar
Arbetsbodar Kontorscontainer Boendecontainer Moduler Byggmodul
Arbetsmodul Kontorsmodul Bygg och kontorsmoduler
Mobila kontor Arbetsplatslösningar Prefabricerade bodar
Tillfälliga arbetsplatser Modulbyggnader Transportabla arbetslokaler
bocontainer nyproduktion välisolerad
Obs: Knappen för att visa hela beskrivningen har bara en visuell effekt.
Plats
| Annons-ID | 21622295 |
|---|---|
| Senast ändrad | 18.3.2026 kl. 13:58 |