Bildgalleri
Ex. 1
(1/2)
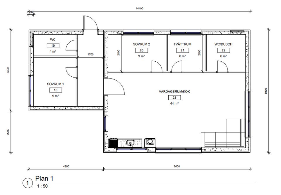
Bygglovsritningar - Kompletta handlingar
Säljes
Be säljaren att skicka med Frakt med köpskydd! Det är säkert, snabbt och du får varan hem till dig. Läs mer
Varubeskrivning
Skick: Nytt skick - helt ny
Jag erbjuder kompletta ritningstjänster för allt från nybyggnationer till om- och tillbyggnader. Med lång erfarenhet inom ritningar och projektering hjälper jag dig att ta ditt projekt från idé till färdigt underlag – oavsett storlek eller komplexitet.
Jag kan hjälpa er med följande ritningar:
Fasadritningar
Planritningar
3D-Visualisering
Sektionsritningar
Situationsplan
Konstruktionsritningar
Bygghandlingar
Kontakta mig för mer info!
Obs: Knappen för att visa hela beskrivningen har bara en visuell effekt.
Användarprofil
Du måste vara inloggad för att se användarprofiler och skicka meddelanden.
Logga inAnnonsens metadata
Senast ändrad: 15.2.2026 kl. 22:46 ・ Annons-ID: 20889011