Bildgalleri
(1/12)
12464 Personalbod 6 man /Bod/Byggbod/Manskapsbod/Arbetsbod
Säljes55 000 kr
Beskrivning
Angivet pris är ett frånpris (exkl moms) på våra personalbodar. Vi har fler liknande objekt i varierande storlekar, utföranden och skick, vilket gör att priset kan variera beroende på val av objekt och eventuella anpassningar. Kontakta oss för aktuell prisinformation och offert utifrån ert behov.
Begagnad personalbod med dusch. Finns för omgående leverans!
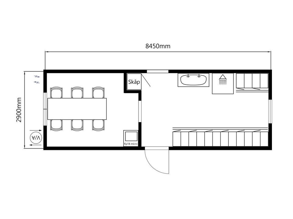
raktisk och funktionell personalbod som passar perfekt för byggarbetsplatser, industrier, tillfälliga verksamheter eller event där personalen behöver ombyte och duschmöjlighet. Boden är smart planerad för att kombinera omklädning, hygien och enklare fikarum/matsal i samma modul.
Utrustning:
- Omklädningsskåp för 8 personer
- Vask med varmvattenberedare
- Dusch
- Extra skåp med klädhängare
- Fikarum med bord och 6 stolar, kyl samt mikro
Dimensioner: 8450 × 2900 mm
Invändig takhöjd (mm): 2400
Total yta (m²): 24
Säljes i befintligt skick.
-------------------------------------------------------------------------
Som kund hos Bodbörsen får du en helhetslösning med fabriksrenovering, transport, bygglov, montage, finansiering och återköp – allt på ett ställe.
📞 Kontakta oss idag för offert eller mer information!
Obs: Knappen för att visa hela beskrivningen har bara en visuell effekt.
Plats
| Annons-ID | 20605741 |
|---|---|
| Senast ändrad | 27.4.2026 kl. 11:51 |