Bildgalleri
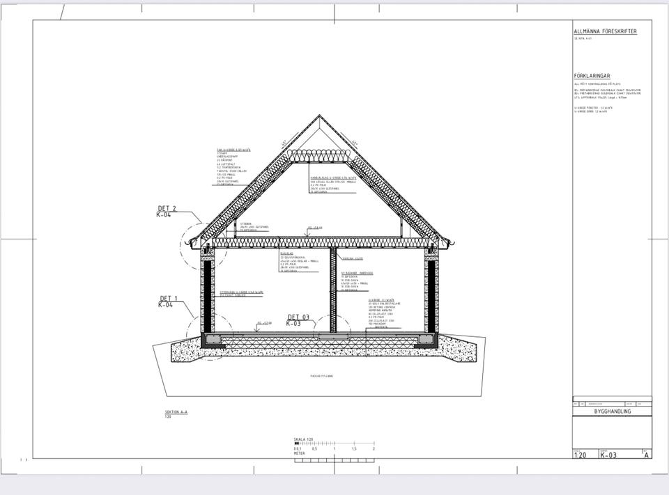
Bygglovsritningar & konstruktionsritningar
Säljes
Varubeskrivning
Funderar ni på att bygga nytt, bygga till eller göra en ombyggnad och behöver hjälp med bygglovshandlingar eller konstruktionshandlingar.
Det kan jag hjälpa till med !
Jag är utbildad byggingenjör och har jobbat med att upprätta konstruktion och bygglovshandlingar i flera år.
Jag utför alla ritningar fackmannamässigt.
Kortfattat vilka handlingar jag kan hjälpa till med:
- Planritningar
-Fasadritningar
-Sektionsritningar
-Konstruktionsritningar
-konstruktionsberäkningar
Tveka inte att kontakta mig för ett prisförslag för ert projekt. Jag bor i Helsingborg och kan besöka er på plats runt om i Skåne om detta behövs.
Användarprofil
Du måste vara inloggad för att se användarprofiler och skicka meddelanden.
Logga inAnnonsens metadata
Senast ändrad: 20.1.2026 kl. 18:25 ・ Annons-ID: 20278421