Bildgalleri
(1/6)
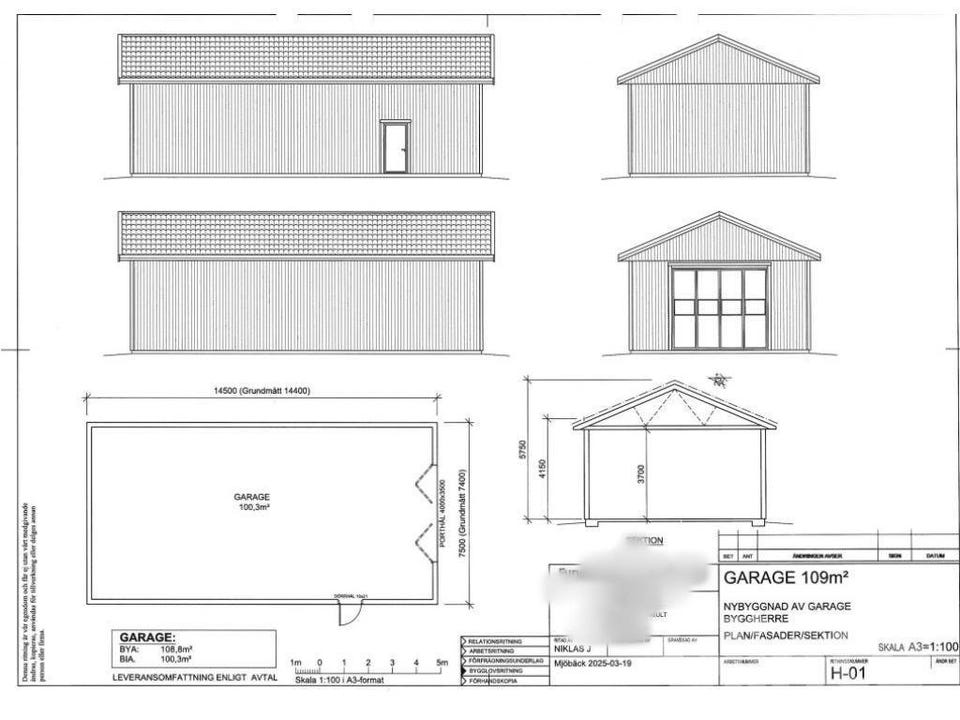
Maskinhall Garage 109 m2
Säljes
Beskrivning
Säljs på auktion hos Blinto. För aktuellt högsta bud och mer information besök blinto.se eller klicka på hänvisad länk i annonsen.
Maskinhall / Garage 109m2
Förråd
Husstomme
Moduler
Byggd av proffesionellt byggföretag/husfabrik.
Nyproducerat.
Tillverkad: 2025
Tillverkat i behändiga block om 2400 mm. Perfekta för frakt och 2 st personer kan lyfta/hantera väggblocken.
Gångdörrmodulen är flyttbar och kan placerar vart ni vill.
Areauppgifter:
BYA 108,8 m2
BIA 100.3 m3
Grundmått 14400 X 7400 mm
Garage för betongplatta.
Avdelande innervägg är inte bärande och ingår ej.
Stommens uppbyggnad
Stående Z panel 22X145 mm
Öppningsmått Porthåll: 4000x 3500 mm
Invändig takhöjd 3680 mm
28/70 Glespanel
5Vindduk/papp
645/145 regel
7 45/195 bärlina
Takstolar ingår
Råspontstak 22mm och takpapp ingår.
Vindskivor och knutar ingår.
Grundmålat vit.
Syll och sylltätning ingår
Ritningar till stomme för bygglovsansökan ingår.
Övriga upplysningar
Takstolar är beräknade efter max snözon 2,5 referens vindhastighet 22m/s
Takläckt och pannor ingår ej.
Dörrar ingår ej.
El ingår ej.
VVS ingår ej.
Gips ingår ej
Ytterväggar utan fönster och dörr
Övrigt
Lasthjälp med kranbil.
Förslag på planlösning finns bland bilder.
Monteringsanvisningar.
Transport och kranmontering kan erbjudas mot offert.
Vid frågor om detta objekt kontakt christian.fellinger_blinto.se
Lasthjälp med lyft finns.
Obs: Knappen för att visa hela beskrivningen har bara en visuell effekt.
Plats
| Annons-ID | 20096599 |
|---|---|
| Senast ändrad | 12.1.2026 kl. 14:26 |