Bildgalleri
(1/9)
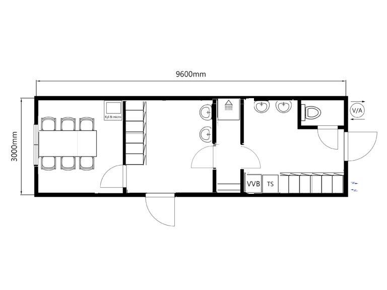
10067 Personalbod / Saneringsbod med WC och dush
Säljes
Beskrivning
Begagnad personalbod / saneringsbod med wc och dusch.
Boden är i mycket gott skick utrustad med omklädningsskåp för 6 personer, 4 st handfat , dusch, varmvattenberedare, torkskåp samt fikarum med bord, stolar, kyl och mikro.
Saneringsboden fungerar som en sluss mellan smutsig och ren zon, så att arbetare kan:
Ta av sig förorenade kläder
Duscha och rengöra sig
Byta till rena arbets- eller privatkläder
Förhindra att farliga ämnen sprids utanför arbetsområdet
Boden är:
Komplett med elinstallationer, radiatorer under fönster samt armaturer i tak, isolerad, byggd på stålram med lyftöglor.
Gaffelfickor.
Levereras funktionskontrollerad klar för drift
Obs: Knappen för att visa hela beskrivningen har bara en visuell effekt.
Plats
| Annons-ID | 19980459 |
|---|---|
| Senast ändrad | 7.1.2026 kl. 16:46 |