Bildgalleri
(1/11)
10543 Beg. skolmoduler 435 kvm
Säljes
Beskrivning
Begagnade moduler före detta förskola. Har stått på samma plats sedan ny och är i bra begagnat skick.
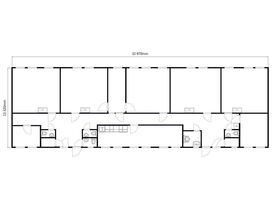
Byggnaden är ca 435kvm och består av 9 moduler och erbjuder 5 salar, kontor, grupprum, 2 kapprum, kök, 3 toaletter, tvättstuga samt godkänd RWC med dusch. Elradiatorer, men går att bygga om till ett vattenburet system. Kan anpassas till dagens energikrav samt samtliga krav som ett bygglov kräver.
Medföljer ett ventilationsaggregat, men det måste anpassas efter verksamhet.
Även lämpliga till annat ändamål, tex kontor och föreningslokal. Mycket fin stomme att bygga vidare på.
Vi har möjlighet att hjälpa till med bygglovshandlingar, finansiering, transport och montering med egen personal.
Kontakta oss idag för att få mer information och boka en personlig visning av objektet på plats hos oss.
Arbetsbod Kontorsbod Byggbod Begagnad bod Renoverad bod Manskapsbod Personalbod Modulbod Förrådscontainer Byggcontainer Mobila kontor Prefabricerade bodar Tillfälliga arbetsplatser Flyttbara bodar Fritidsbod Attefallshus Rastbod Tillfälliga kontor, Byggarbetsplats Byggprojekt Tillfälliga lokaler Entreprenadlösningar Industribodar Uthyrning av bodar Kontorslösningar för företag Bygg- och kontorsmoduler Tillfälliga bostäder Entreprenadmoduler, Rastbod, stålmoduler, Byssja, Rastvagn, sovvagn, stuga, bostadsbod, bostadsmodul, hjulvagn, Hjulbod, Skogskoja, Huggarkoja, Scanvogn, kontorsuppställning, bod
Obs: Knappen för att visa hela beskrivningen har bara en visuell effekt.
Plats
| Annons-ID | 19408724 |
|---|---|
| Senast ändrad | 10.12.2025 kl. 14:59 |