Bildgalleri
(1/10)
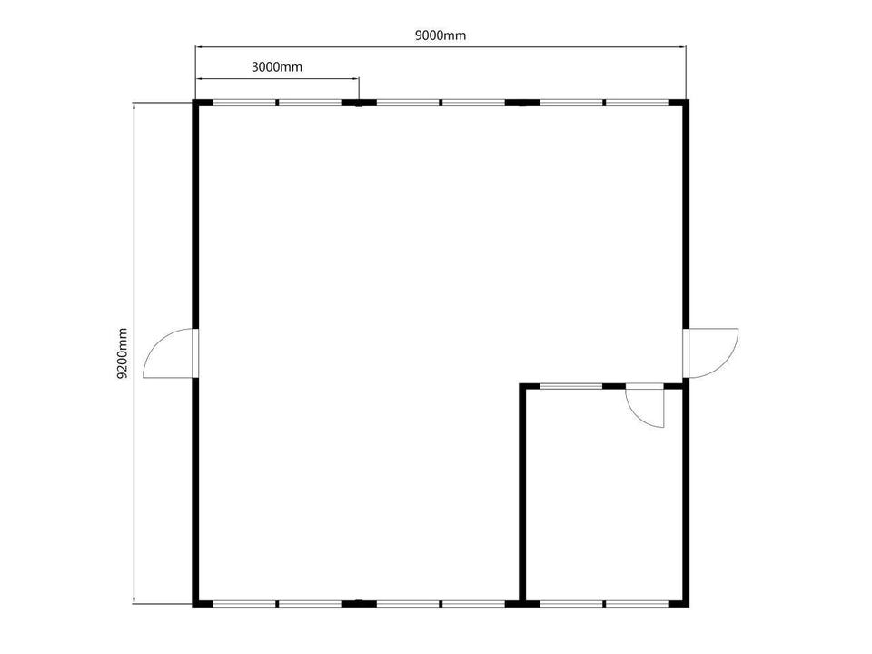
11822 Modulbyggnad, sal ca 80 kvm
Säljes
Beskrivning
Begagnad modulbyggnad/kontorsmodul med 3 moduler och en totalyta på ca 80 kvm.
Tack vare sin modulära design är denna modulbyggnad både flexibel och kostnadseffektiv,
perfekt för företag som behöver utöka sina lokaler på ett smidigt och kostnadseffektivt sätt.
Modulbyggnaden består av:
– Ett öppet rum för kontor eller annat ändamål
– Ett mindre mötesrum
✔ Levereras funktionskontrollerad!
Vi hjälper gärna till med transport och montage.
Kontakta oss för hjälp med finansiering eller andra frågor!
Arbetsbod Kontorsbod Byggbod Begagnad bod Renoverad bod Manskapsbod Personalbod Modulbod Förrådscontainer Byggcontainer Mobila kontor Prefabricerade bodar Tillfälliga arbetsplatser Flyttbara bodar Fritidsbod Attefallshus Rastbod Tillfälliga kontor, Byggarbetsplats Byggprojekt Tillfälliga lokaler Entreprenadlösningar Industribodar Uthyrning av bodar Kontorslösningar för företag Bygg- och kontorsmoduler Tillfälliga bostäder Entreprenadmoduler, Rastbod, stålmoduler, Byssja, Rastvagn, sovvagn, stuga, modulbyggnad, bod
Obs: Knappen för att visa hela beskrivningen har bara en visuell effekt.
Plats
| Annons-ID | 19408214 |
|---|---|
| Senast ändrad | 10.12.2025 kl. 14:43 |