Bildgalleri
(1/8)
12363 Sal med pentry och WC på 48kvm
Säljes
Beskrivning
Produktbeskrivning
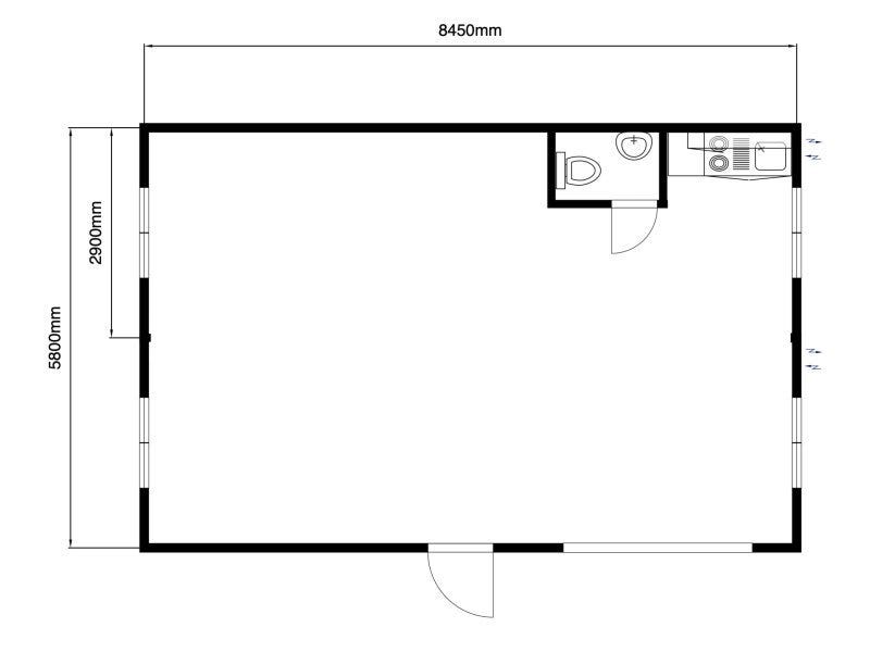
Begagnad modulsal bestående av 2st bodar på 48 m² i gott skick.
Bod kommer utrustad med:
Pentry
Wc med vask
Stort fönster på långsidan
Boden är även utrustad med fönstergaller, samt radiatorer under fönster.
Luftvärmepump kan installeras som tillval enligt önskemål.
Levereras renoverad målad i önskad kulör.
Vi hjälper till med finansiering, transport och montering.
Fråga oss!
Bodarna är isolerade och kompletta med elinstallationer och armaturer i tak. Byggda på stålram med lyftöglor och gaffelfickor.
✔ Levereras funktionskontrollerad!
Arbetsbod Kontorsbod Byggbod Begagnad bod Renoverad bod Manskapsbod Personalbod Modulbod Förrådscontainer Byggcontainer Mobila kontor Prefabricerade bodar Tillfälliga arbetsplatser Flyttbara bodar Fritidsbod Attefallshus Rastbod Tillfälliga kontor, Byggarbetsplats Byggprojekt Tillfälliga lokaler Entreprenadlösningar Industribodar Uthyrning av bodar Kontorslösningar för företag Bygg- och kontorsmoduler Tillfälliga bostäder Entreprenadmoduler, Rastbod, stålmoduler, Byssja, Rastvagn, sovvagn, stuga, modulbyggnad
Obs: Knappen för att visa hela beskrivningen har bara en visuell effekt.
Plats
| Annons-ID | 19407641 |
|---|---|
| Senast ändrad | 10.12.2025 kl. 14:25 |