Bildgalleri
(1/7)
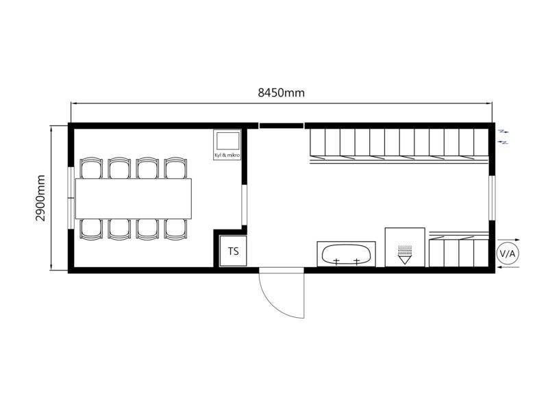
10945 8-mans Personalbod/ Byggbod/ Bod
Säljes
Beskrivning
Produktgrupp: Byggbaracker
Uppställningsplats: Landskrona, Skåne län
Begagnad Personalbod/Arbetsbod för 8 personer.
Boden är utrustad:
– Omklädningsskåp för 8 personer
– Vask
– Varmvattenberedare
– Dusch
– Torkskåp
– Fikarum med bord, stolar, kyl och mikro
– Fönstergaller
Objektsnummer: 10945
Dimensioner (mm): 8450 × 2900
Invändig takhöjd (mm): 2400
Total yta (m²): 24
Boden är komplett med elinstallationer, radiatorer samt takarmaturer.
Isolerad och byggd på stålram med lyftöglor.
Referensbilder utvändigt!
Fabriksrenoveras och målas utvändigt i önskad kulör innan leverans.
✔ Levereras funktionskontrollerad!
Vi erbjuder hjälp med transport och montering!
Besök gärna vår hemsida eller vår depå i Landskrona för att se våra andra objekt. Vi har över 500 objekt i lager och bodar i olika storlekar, modeller och utföranden.
Arbetsbod Kontorsbod Byggbod Begagnad bod Renoverad bod Manskapsbod Personalbod Modulbod Förrådscontainer Byggcontainer Mobila kontor Prefabricerade bodar Tillfälliga arbetsplatser Flyttbara bodar Fritidsbod Attefallshus Rastbod Tillfälliga kontor, Byggarbetsplats Byggprojekt Tillfälliga lokaler Entreprenadlösningar Industribodar Uthyrning av bodar Kontorslösningar för företag Bygg- och kontorsmoduler Tillfälliga bostäder Entreprenadmoduler, Rastbod, stålmoduler, Byssja, Rastvagn, sovvagn, stuga, bostadsbod, bostadsmodul, hjulvagn, Hjulbod, Skogskoja, Huggarkoja, Scanvogn
Obs: Knappen för att visa hela beskrivningen har bara en visuell effekt.
Plats
| Annons-ID | 19407321 |
|---|---|
| Senast ändrad | 10.12.2025 kl. 14:15 |