Bildgalleri
poolhus, friggebod, attefallshus, kontor
Säljes
219 000 kr
Varubeskrivning
Skick: Nytt skick - helt ny
SUNHOUSE20 - Nyckelfärdig
Art. nr 0778 - 02
Ett mycket populärt och rejält funkishus snygg och tidlös design som levereras nyckelfärdig. Det innebär golvet är isolerat med 145 mm isolering. Monterat massivt gammaldags furugolv som är 26 mm tjockt. Fyra väggar samt tak är monterat. Ett lager underlagspapp samt ett lager ytpapp. El är indraget av behörig elektriker. Förberedd för att montera solfångare (Takstolar C-C 600 mm). Levereras obehandlad.
Invändig panel är råsågad i 3 olika bredder, obehandlad. Se bild 6
Perfekt att använda som gäststuga, kontor, poolhus.....
Pardörr 16x21
Fönster 10x5 överkantshängda öppningsbara 3 st
Väggar:
Reglar 45x95
Luftspalt 20 mm
Vindpapp monterad
Isolering 95 mm
Klädselbrädor 20x120
Golv:
Golvbrädor 26x120 furu
Golvreglar 45x145
Isolering 145 mm (ingår)
Tryckt underbräda som vilar på plintar
Asfaltboard
Tak:
Takreglar 45x145 C-C 600
Isolering 120 mm
Råspont 20 mm tjock
Underlagspapp
Ytpapp
El:
Monterad elcentral
8 st dimbara LED-spotlights i taket
1 st uttag för element
3 st eluttag
Pris:
219 000:- med dörr 10x21 + 3 fönster 10x5 öppningsbara
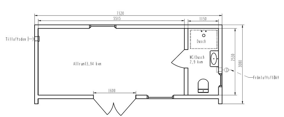
I grundpriset ingår inte kök & badrum
Badrumspaket + 85 000:-
Bild nr 1 är garage variant i tryckimpregnerad fasad
Mer info hittar ni på handskholmen.se
Användarprofil
Du måste vara inloggad för att se användarprofiler och skicka meddelanden.
Logga inAnnonsens metadata
Senast ändrad: 23.11.2025 kl. 10:17 ・ Annons-ID: 18953122