Kan skickas
Bildgalleri
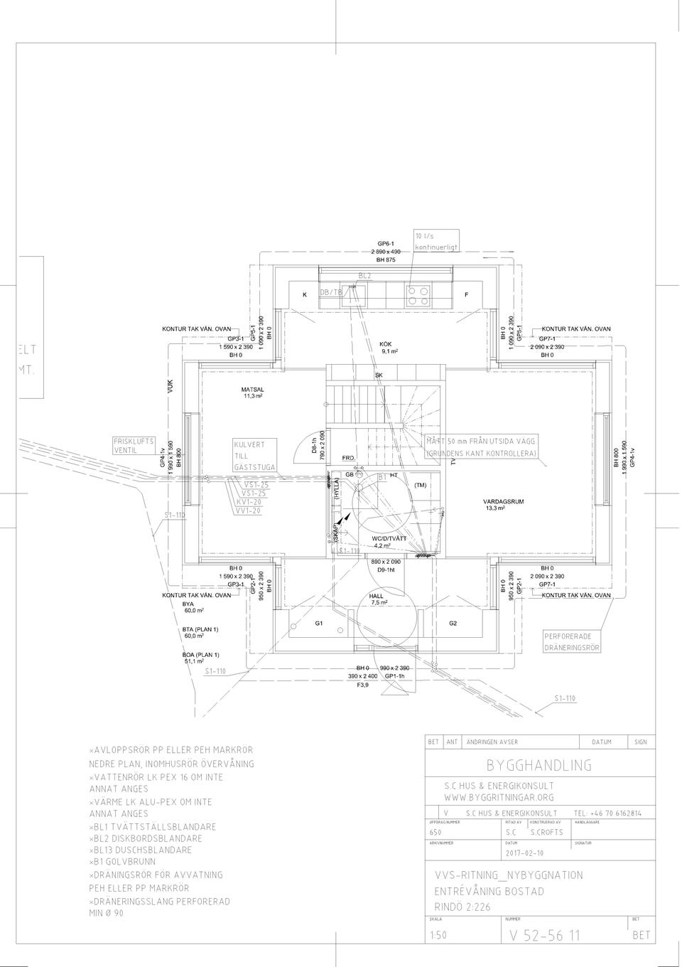
VVS ritning
(1/4)
VVS-ritningar inför startbesked
Inaktiv
Säljes
1 000 kr
Be säljaren att skicka med Frakt med köpskydd! Det är säkert, snabbt och du får varan hem till dig. Läs mer
Varubeskrivning
Skick: Nytt skick - helt ny
VVS-ritningar för privatpersoner eller byggprojekt. Proffesionella ritningar av VVS konsult med behörighet "Säker vatten" För att det ofta krävs inför startbesked och för att det blir bättre, när bygglaget vet innan vad det är, dom ska göra. För nybyggnation över hela landet. Tillbyggnad och liknande fråga först.
Välkommen också till www.byggritningar.com eller skriv till info@byggritningar.com
Obs: Knappen för att visa hela beskrivningen har bara en visuell effekt.
Användarprofil
Du måste vara inloggad för att se användarprofiler och skicka meddelanden.
Logga inAnnonsens metadata
Senast ändrad: 19.11.2025 kl. 15:50 ・ Annons-ID: 18853023