Bildgalleri
(1/12)
S4336 Byggnad 530kvm
Säljes
Beskrivning
Hej, passa på med denna fina byggnad.
S4336
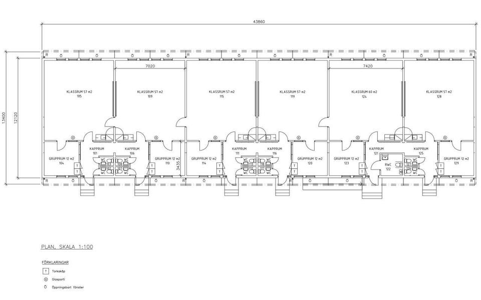
Mycket fin byggnad, bestående av 12st volymelement för lätt flytt. En rejäl och välisolerad konstruktion för permanentbruk.
BYA: ca490kvm (12.1 x 44m)
Innerhöjd: 2.7m
Storlek på varje modul (12st): ca12.1 x 3.6m
Idag stora, fina ytor, flera grupprum,, 11st WC/RWC mm. Se sista bild för ritning och här för film: https://youtu.be/hd2yK4P8s58
Säljes inkl demontage, inplastning för transport och kranlyft på bil. Ev kan del av byggnad säljas. Vi kan ombesörja transport och montage till självkostnad.
Byggnaden är byggd för permanent (alt. temporär uppställning) bruk. Mycket hög standard och byggnadskvalitet. Inte att jämföra med enklare byggbodar el liknande.
OBS: Byggnaden kan inte stå kvar utan flyttas till köpares mark!!!
Modulhuset säljer även kontorsmoduler, kontorsbodar, manskapsbod, förskola, skola, kontorsbyggnad, husbyggnation, manskapsbodar, arbetsbodar, byggbodar, personalbodar, kontorsbodar, modulbyggnad, paviljong, klubbhus, föreningslokal, flyktingboende, vandrarhem, bobodar, boendebodar, baracker, .personalbostäder, personalboende, studentboende, skolbyggnad, studentlägenheter, boendemodul, arbetsbod, föreningslokal, skolbyggnad, elevhem, modulhus, föreningslokal mm.
Fler fina byggnader finner ni på vår hemsida www.modulhuset.se
Obs: Knappen för att visa hela beskrivningen har bara en visuell effekt.
Plats
| Annons-ID | 17699890 |
|---|---|
| Senast ändrad | 2026-04-14 kl. 11:49 |